Warszawa, Białołęka, Sprawna

Mieszkanie na sprzedaż

3 pokoje 2 piętro 64,58 m2 11 288,32 zł/m2

729 000 zł

Adam Lebiedziński

Manager

Opis nieruchomości

SPRZEDANE! Gratuluję sprzedawcom i nabywcom!

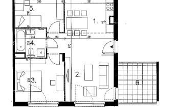
Wygodne, ciche, widne i wyposażone trzy pokoje na powierzchni 64,58 m2 plus 8,8 m2 balkonu.

Kameralne osiedle z 2019 r. na Białołęce, przy ul.Sprawnej 7c. Blisko przystanków komunikacji miejskiej i terenów spacerowych nad Wisłą. Doskonałe miejsce do aktywności fizycznej. Przedszkola, szkoły ,sklepy i centrum handlowe w pobliżu. Mieszkanie wyposażone w nowoczesny sprzęt AGD, dobrze wykończone w 2021 r. dla obecnych właścicieli.

Lokal położony jest na drugim piętrze (bez windy) w dwupiętrowym budynek z dwunastoma lokalami. Całe osiedle liczy pięć budynków. Miejsca parkingowe dla mieszkańców, ogólnodostępne w zatokach na osiedlowej ulicy. 

Mieszkanie posiada pierwotny układ, bez przeróbek. Jest dwustronne z ustawnymi pokojami i dużymi oknami. Salon wraz kuchnią i jadalnią tworzy jedną przestrzeń ok. 35 m2, sypialnia 11,5 m2, gabinet z garderobą to 13 m2. Łazienka 5 m2 i do tego ustawny w kwadracie balkon blisko 9 m2.

Niskie koszty utrzymania zapewnia własny system grzewczy (wodny) ogrzewania podłogowego w całym mieszkaniu. Wszystkie, miesięczne koszty utrzymania (tzw. czynsz), obejmujące ciepłą i zimną wodę, ogrzewanie, odpady, fundusz remontowy i utrzymanie części wspólnych na dzisiaj, to niecałe 700 zł.

Zapraszam do kontaktu po więcej informacji i na prezentację.
Zadzwoń, porozmawiaj, obejrzyj, to nic nie kosztuje.

Adam Lebiedziński

506 338 494

AL-home Nieruchomości

Dane Świadectwa Charakterystyki Energetycznej dla lokalu:
1. EU=78,48 kwh(m2-rok)
2. EK=129,84 kwh(m2-rok)
3. EP=89,59 kwh(m2-rok)
4. E CO2=0,0285 t CO2(m2-rok)
5. U OZE=0%

 

Nota prawna oferty nieruchomości

Opis oferty zawarty na stronie internetowej sporządzany jest w najlepszej wierze na podstawie oględzin nieruchomości, informacji uzyskanych od właściciela, oraz z dokumentów dotyczących danej nieruchomości. Może podlegać aktualizacji. Nie stanowi oferty określonej w art. 66 i następnych K.C. Jest jedynie zaproszeniem do rozpoczęcia rokowań.

Szczegóły

Symbol oferty ALH-MS-3625
Powierzchnia 64,58 m²
Powierzchnia balkonów/tarasów 9,00 m²
Liczba pokoi 3
Piętro 2
Rodzaj budynku blok
Technologia budowlana murowana
Liczba pięter w budynku 2
Stan lokalu do wprowadzenia
Stan prawny Własność
Mies. czynsz admin. 700 PLN
Okna PCV
Liczba balkonów 1
Rok budowy 2019
Gaz jest
Ogrzewanie centralne
Umeblowanie tak
Usytuowanie środkowe

Podobne oferty

Mieszkanie na sprzedaż - Warszawa, Białołęka, Podłużna
mieszkanie na sprzedaż - Warszawa, Białołęka, Podłużna

ALH-MS-3639

Warszawa, Białołęka,…
mieszkanie na sprzedaż

2 pokoje 42,00 m²

554 000
13 190,48 zł/m2
Dodaj
do notatnika
Mieszkanie na sprzedaż - Warszawa, Targówek, Poborzańska
mieszkanie na sprzedaż - Warszawa, Targówek, Poborzańska

ALH-MS-3633

Warszawa, Targówek, Poborzańska
mieszkanie na sprzedaż

1 pokój 35,40 m²

559 000
15 790,96 zł/m2
Dodaj
do notatnika
Mieszkanie na sprzedaż - Warszawa, Bemowo, Górce, Babimojska
mieszkanie na sprzedaż - Warszawa, Bemowo, Górce, Babimojska

ALH-MS-3632

Warszawa, Bemowo, Górce,…
mieszkanie na sprzedaż

2 pokoje 47,40 m²

699 000
14 746,84 zł/m2
Dodaj
do notatnika
Mieszkanie na sprzedaż - Warszawa, Wola, al. Solidarności
mieszkanie na sprzedaż - Warszawa, Wola, al. Solidarności

ALH-MS-3583

Warszawa, Wola, al. Solidarności
mieszkanie na sprzedaż

4 pokoje 62,03 m²

649 000
10 462,68 zł/m2
bez prowizji
Dodaj
do notatnika
PLN
PLN
PLN
PLN
PLN
PLN
PLN
%
PLN
PLN
PLN

PLN

Uwaga: mogą wystąpić dodatkowe opłaty za założenie księgi wieczystej oraz ustanowienie hipoteki.

Dane:

PLN
%

Wynik:

PLN
pierwsza rata
ostatnia rata

Napisz do nas

Proszę wypełnić to pole
Proszę wypełnić to pole
Proszę wypełnić to pole
Proszę wypełnić to pole
Trwa wysyłanie...

Ta strona wykorzystuje pliki cookies w celach statystycznych oraz w celu dostosowania naszych serwisów do indywidualnych potrzeb klientów. Zmiany ustawień dotyczących plików cookie można dokonać w dowolnej chwili modyfikując ustawienia przeglądarki. Korzystanie z tej strony bez zmian ustawień dotyczących cookies oznacza, że będą one zapisane w pamięci urządzenia.

rozumiem