Opis nieruchomości
SPRZEDANE!!!Kupowanie mieszkania do remontu może mieć sens.
Możesz urządzić je, tak jak Tobie będzie sie podobało i na ile cię stać.
Możesz wykończyć je sposób odpowiedni do wynajmowania.
Możesz kupić je taniej niż w pełni wyposażone.
Trzy pokoje na Mokotowie. Blisko do Mordoru, Galerii Mokotów, Wydziału Zarządzania UW. Bardzo dobra komunikacja, do stacji metra dwa przystanki autobusowe.
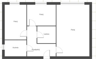
Budynek z końca lat 70 XX w. Mieszkanie na parterze, bez balkonu. Mieszkanie do remontu. Trzy samodzielne pokoje, oddzielna kuchnia, łazienka z wc.
Spółdzielcze własnościowe prawo do lokalu bez założonej KW. Grunty uregulowane.
Zadzwoń, porozmawiaj, obejrzyj. Zapraszam.
Jako biuro nieruchomosci pobieram wynagrodzenie za usługę pośrednictwa.
Adam Lebiedziński
506 338 494
Nota prawna oferty nieruchomości
Opis oferty zawarty na stronie internetowej sporządzany jest w najlepszej wierze na podstawie oględzin nieruchomości, informacji uzyskanych od właściciela, oraz z dokumentów dotyczących danej nieruchomości. Może podlegać aktualizacji. Nie stanowi oferty określonej w art. 66 i następnych K.C. Jest jedynie zaproszeniem do rozpoczęcia rokowań.Szczegóły



