Warszawa, Wilanów, Miasteczko Wilanów, Sarmacka

Mieszkanie na sprzedaż

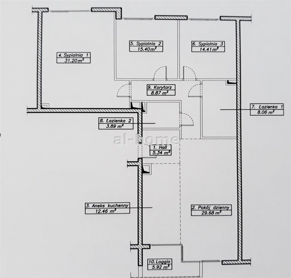
4 pokoje 1 piętro 129,31 m2 10 973,63 zł/m2

1 419 000 zł

oferta na wyłączność
Adam Lebiedziński

Manager

Opis nieruchomości

SPRZEDANE!

Atrakcyjny, ciepły, rodzinny, czteropokojowy apartament przy ul.Sarmackiej w Miasteczku Wilanów.

Dogodnie usytuowany wewnątrz osiedla Avangarden projektu JEMS Architekci. Dwustronny, widny, na pierwszym piętrze z widokami na wewnętrzne zielone dziedzińce. Bez szumu z ulic. Brak sklepów i powierzchni użytkowych poniżej mieszkania.

Funkcjonalne położenie względem komunikacji miejskie. Do przystanków w Alei Wilanowskiej 250m a w Alei Rzeczpospolitej 300 m.

Przestronny pokój dzienny z kuchnią o łącznej powierzchni 42 m2 z wyjściem na loggię 5,9 m2. Trzy sypialnie o powierzchniach ponad 31; 15 i 14 m2. Dwie łazienki 8 i blisko 4 m2. Wszystkie pokoje ustawne, widne, zgodne z pierwotnym układem.

Bezpośrednie otoczenie zapewnia pełną gamę sklepów, punktów usługowych, barów i kawiarni, oraz placówek edukacyjnych w tym renomowanych szkół międzynarodowych.

W garażu podziemnym właściciele posiadają do sprzedania wygodne, rodzinne, podwójne miejsce parkingowe w cenie 49 ts. zł.

Zadzwoń, porozmawiaj (również o cenie), obejrzyj. Zapraszam.

Adam Lebiedziński
506 338 494

Uwalniam od sprzedawania. Zapewniam doskonałą organizację. Oferuję 100% usługi. Gwarantuję najlepsze warunki współpracy.

Nota prawna oferty nieruchomości

Opis oferty zawarty na stronie internetowej sporządzany jest w najlepszej wierze na podstawie oględzin nieruchomości, informacji uzyskanych od właściciela, oraz z dokumentów dotyczących danej nieruchomości. Może podlegać aktualizacji. Nie stanowi oferty określonej w art. 66 i następnych K.C. Jest jedynie zaproszeniem do rozpoczęcia rokowań.

Szczegóły

Symbol oferty ALH-MS-3530
Powierzchnia 129,31 m²
Powierzchnia użytkowa 129,31 m²
Powierzchnia balkonów/tarasów 5,90 m²
Liczba pokoi 4
Piętro 1
Rodzaj budynku apartamentowiec
Liczba pięter w budynku 4
Garaż garaż pod budynkiem
Stan lokalu bardzo dobry
Stan prawny Własność
Mies. czynsz admin. 1 300 PLN
Okna drewniane
Balkon loggia
Rok budowy 2013
Widok na podwórko
Dojazd asfalt
Ogrzewanie C.O. miejskie
Winda tak
Usytuowanie środkowe
PLN
PLN
PLN
PLN
PLN
PLN
PLN
%
PLN
PLN
PLN

PLN

Uwaga: mogą wystąpić dodatkowe opłaty za założenie księgi wieczystej oraz ustanowienie hipoteki.

Dane:

PLN
%

Wynik:

PLN
pierwsza rata
ostatnia rata

Napisz do nas

Proszę wypełnić to pole
Proszę wypełnić to pole
Proszę wypełnić to pole
Proszę wypełnić to pole
Trwa wysyłanie...

Ta strona wykorzystuje pliki cookies w celach statystycznych oraz w celu dostosowania naszych serwisów do indywidualnych potrzeb klientów. Zmiany ustawień dotyczących plików cookie można dokonać w dowolnej chwili modyfikując ustawienia przeglądarki. Korzystanie z tej strony bez zmian ustawień dotyczących cookies oznacza, że będą one zapisane w pamięci urządzenia.

rozumiem